物件紹介 Property

鎌倉・湘南エリア

南側が空地のため陽当り良好です!

1

FOR SALE

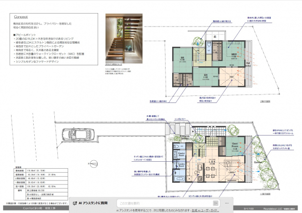
茅ヶ崎市本村2丁目 建築条件付き売地

JR線「茅ヶ崎」駅 徒歩15分
3,680万円

物件の詳細を見る >

JR大船駅徒歩圏の旧分譲地エリア

1

FOR SALE

Comfort大船4丁目 新築分譲住宅 全3棟

JR線「大船」駅 徒歩15分
4,580万円
3LDK 90.71㎡~

物件の詳細を見る >

再開発計画地隣接の注目エリア!

1

SOLD OUT

Comfort上町屋 新築分譲住宅 全3棟

JR東海道線「(仮称)村岡」駅 徒歩6分
4LDK 101.85㎡~

物件の詳細を見る >

吹き抜け・ワークスペース付き!

1

SOLD OUT

Comfort本村1丁目 新築分譲住宅 全2棟

JR線「茅ヶ崎」駅 徒歩10分
4LDK・4SLDK 105.56㎡~

物件の詳細を見る >

屋外温水シャワー付き!

1

SOLD OUT

Comfort鵠沼桜が岡1丁目 新築分譲住宅 全3棟

JR線「藤沢」駅 徒歩15分
4LDK・3SLDK 91.91㎡~

物件の詳細を見る >

材木座海岸まで徒歩15分の自然豊かな住宅地

1

SOLD OUT

Comfort大町4丁目 新築分譲住宅 限定1棟

JR線「鎌倉」駅 徒歩18分
4LDK 93.87㎡

物件の詳細を見る >

海まで1分!

1

SOLD OUT

Comfort腰越2丁目 新築分譲住宅 全2棟

江ノ島電鉄線「腰越」駅 徒歩2分
4LDK 102.86㎡

物件の詳細を見る >

材木座海岸まで徒歩15分までの自然豊かな住宅地

1

SOLD OUT

Comfort大町5丁目 新築分譲住宅 限定1棟

JR線「鎌倉」駅 徒歩18分
4LDK 91.54㎡

物件の詳細を見る >

富士山一望の閑静な住宅地

1

SOLD OUT

Comfort藤沢5丁目 新築分譲住宅 限定1棟

江ノ島線「藤沢本町」駅 徒歩10分
4LDK 104.96㎡

物件の詳細を見る >